Jiangsu Gongtang Chemical Equipments Co., Ltd. Jiangsu Gongtang
  • 
  • หน้าแรก
  • เกี่ยวกับเรา+
    • ข้อมูลบริษัท
    • เยี่ยมชมโรงงาน
    • เอกสารรับรอง
    • งานแสดงสินค้า
  • ผลิตภัณฑ์+
  • บริการและการสนับสนุน
  • อุตสาหกรรม
  • กรณีศึกษา
  • ติดต่อเรา
  • วิดีโอ
  • หน้าแรก
  • ผลิตภัณฑ์
  • คอลัมน์เคลือบแก้ว
คอลัมน์เคลือบแก้ว
  • คอลัมน์เคลือบแก้ว
  • ถังเก็บเคลือบแก้วแนวนอน
  • คอลัมน์เคลือบแก้ว
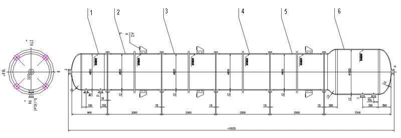
    ส่วนคอลัมน์เคลือบแก้วแบบสั่งทำพร้อมการเสริมความแข็งแรงภายนอก

คอลัมน์เคลือบแก้ว

คอลัมน์ทนการกัดกร่อนสำหรับงานกลั่น การสกัด และการดูดซับ

คอลัมน์เคลือบแก้วเหมาะสำหรับกระบวนการอุตสาหกรรมที่ต้องการความทนทานสูง ซึ่งวัสดุอาจมีฤทธิ์กัดกร่อนหรือมีปฏิกิริยาสูง เปลือกเหล็กให้ความแข็งแรงต่อแรงดัน ขณะที่ชั้นเคลือบแก้วป้องกันการกัดกร่อนและป้องกันไม่ให้ตัวกลางในกระบวนการสัมผัสกับโลหะ การออกแบบนี้ทำให้คอลัมน์ทนการกัดกร่อนมีความปลอดภัยมากขึ้น มีความเสถียร และใช้งานได้นานขึ้นสำหรับกระบวนการเช่น การกลั่น การดูดซับ และการสกัด โดยมักนำไปใช้ในกระบวนการกลั่น สกัด ดูดซับ และกระบวนการแยกหรือบำบัดอื่น ๆ

ขอใบเสนอราคา

คอลัมน์ทนการกัดกร่อนเหล่านี้เป็นไปตามมาตรฐาน GB25025-2010 หรือ ASME เพื่อให้มั่นใจในประสิทธิภาพที่เชื่อถือได้และสอดคล้องกับข้อกำหนดของอุตสาหกรรม การออกแบบรวมความเฉื่อยทางเคมีของแก้วเข้ากับความแข็งแรงของโครงสร้างเหล็ก ทำให้ได้อุปกรณ์ที่ทั้งทนทานและต้านทานการกัดกร่อน

นอกจากรุ่นมาตรฐานของคอลัมน์เคลือบแก้วแล้ว ยังสามารถจัดทำแบบสั่งทำพิเศษได้ รวมถึงคอลัมน์กลั่น คอลัมน์สกัด คอลัมน์ดูดซับ และอุปกรณ์กระบวนการเคลือบแก้วอื่น ๆ ที่ปรับแต่งตามสภาพการใช้งานเฉพาะได้

คุณลักษณะเด่น
  • คอลัมน์เคลือบแก้วสามารถรับมือกับตัวกลางที่กัดกร่อนได้หลากหลายประเภท รวมถึงกรดเข้มข้น สารออกซิไดซ์ และตัวทำละลายอินทรีย์ ข้อจำกัดเดียวคือสารละลายที่มีไอออนฟลูออรีน
  • ผิวด้านในของแก้วเรียบและไม่มีรูพรุน ทำให้ทนต่อการเกิดคราบและทำความสะอาดง่ายกว่าพื้นผิวโลหะเปล่า
  • เนื่องจากชั้นเคลือบแก้วไม่ซึมผ่าน จึงป้องกันการปนเปื้อนข้ามชุดผลิต ในขณะเดียวกัน ความคงตัวทางเคมีของแก้วช่วยรักษาความบริสุทธิ์ สี และคุณสมบัติของวัสดุที่เก็บหรือรักษาผลให้คงเดิม
พารามิเตอร์ทางเทคนิค
อุณหภูมิ 0℃~+200℃
แรงดัน ภายในคอลัมน์ FV-0.25MPa
แจ็กเก็ต 0.6MPa

Technical Parameters
ขนาดเส้นผ่านศูนย์กลาง D (mm) ความยาวสูงสุด L  (mm) ความยาวส่วนสูงสุด L1 (mm) วิธีการประกอบ
200 219 3000 - ประกอบด้วยหน้าแปลนแยก
250 273 3000 -
300 325 3000 500
400 406 3000 750 ประกอบด้วยแคลมป์
500 508 3000 1000
600 600 4000 1400
800 800 4500 2000
1000 1000 4500 2500
1200 1200 6000 4000
1400 1400 6000 4000
1600 1600 6000 4000
1800 1800 6000 4000
2000 2000 6000 4000

หมายเหตุ: ท่อและอุปกรณ์เสริมของคอลัมน์สามารถปรับแต่งได้ตามความต้องการเฉพาะของลูกค้า

คอลัมน์เคลือบแก้วที่กำลังใช้งานจริงในสถานที่ทำงานลูกค้า
คอลัมน์เคลือบแก้วที่กำลังใช้งานจริงในสถานที่ทำงานลูกค้า
คอลัมน์เคลือบแก้วที่กำลังใช้งานจริงในสถานที่ทำงานลูกค้า
คอลัมน์เคลือบแก้วที่กำลังใช้งานจริงในสถานที่ทำงานลูกค้า

เรายังมีอุปกรณ์เสริมสำหรับอุปกรณ์เคลือบแก้ว

ต้องการการสนับสนุนด้านเทคนิคสำหรับอุปกรณ์เคลือบแก้วหรือไม่

วิศวกรของเราพร้อมให้คำแนะนำเชิงผู้เชี่ยวชาญเกี่ยวกับเครื่องปฏิกรณ์เคลือบแก้ว ถังเคลือบแก้ว และอุปกรณ์กระบวนการที่ปรับแต่งได้สำหรับงานด้านเคมี เภสัชกรรม และอุตสาหกรรมทั่วไป

  • สินค้าอื่น
เครื่องแลกเปลี่ยนความร้อนเคลือบแก้ว
เครื่องแลกเปลี่ยนความร้อนเคลือบแก้ว
เครื่องอบแห้งทรงกรวยคู่เคลือบแก้ว
เครื่องอบแห้งทรงกรวยคู่เคลือบแก้ว
เครื่องปฏิกรณ์เคลือบแก้ว
เครื่องปฏิกรณ์เคลือบแก้ว
ดูเพิ่มเติม

คอลัมน์เคลือบแก้วสามารถสั่งผลิตตามความต้องการได้หรือไม่ และมีประเภทใดบ้าง?

ได้ สามารถปรับแต่งได้สำหรับส่วนคอลัมน์ต่าง ๆ รวมถึงส่วนคอลัมน์เคลือบแก้วแบบพันด้วยสายยาง ขึ้นอยู่กับความต้องการของโครงการ อุปกรณ์เฉพาะทาง เช่น หอคอยแยกกลั่น หอคอยสกัด หอคอยดูดซับ และอุปกรณ์เคลือบแก้วที่ไม่เป็นมาตรฐานอื่น ๆ ก็สามารถผลิตได้ตามความต้องการ

คุณสมบัติใดของคอลัมน์เคลือบแก้วที่ช่วยให้ประสิทธิภาพและคุณภาพของวัสดุคงที่

ข้อได้เปรียบหลักคือผิวด้านในเรียบ ทำความสะอาดง่ายและไม่เกิดคราบง่าย เนื่องจากการเคลือบแก้วทึบ จึงป้องกันการปนเปื้อนข้ามชุด และความคงตัวทางเคมีของแก้วช่วยรักษาความบริสุทธิ์ สี และคุณสมบัติของวัสดุที่เก็บหรือประมวลผลให้อยู่ในสภาพสมบูรณ์

Jiangsu Gongtang Chemical Equipments Co., Ltd. Jiangsu Gongtang
ผู้ผลิตอุปกรณ์เคลือบแก้ว
เมนูลัด
  • เกี่ยวกับเรา
  • เยี่ยมชมโรงงาน
  • เอกสารรับรอง
  • งานแสดงสินค้า
  • บริการและการสนับสนุน
  • กรณีโครงการ
  • วิดีโอ
ผลิตภัณฑ์
  • เครื่องปฏิกรณ์เคลือบแก้ว
  • ถังเก็บเคลือบแก้ว
  • คอลัมน์เคลือบแก้ว
  • เครื่องแลกเปลี่ยนความร้อนเคลือบแก้ว
  • เครื่องอบแห้งทรงกรวยคู่เคลือบแก้ว
  • อุปกรณ์เสริม
  • ระบบกระบวนการแบบครบวงจร
ติดต่อเรา
chrisz.jsjjgt@outlook.com
+86-523-89110022
+86-15861003636